Villa GBT
Luogo:
Mascali (CT) Sicilia, ITALIA
Anno:
2015
Cliente:
Privato
Superficie:
176 mq. per unità
Budget:
n.d.
Progetto:
Luigi Pardo Architettura
Team:
Arch.Luigi Pardo
Arch.Francesco Cantarano
Arch.PhD. Sandra Persiani
GBT
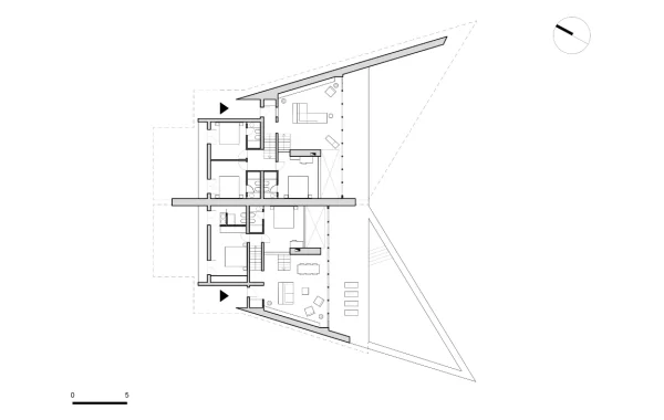
GBT è un’abitazione bifamiliare che nasce sulle pendici dell'Etna.
In questo intervento di nuova costruzione si richiedevano due unità distinte all’interno dello stesso volume con degli spazi esterni in comune alle due famiglie.
L'edificio è costruito con una struttura mista legno XLAM e calcestruzzo armato, minimizzando la necessità di eseguire scavi e massimizzando la superficie interna abitativa. Gli interni sono sviluppati su tre livelli intersecati tra di loro affacciandosi sulla piscina che compensa il dislivello naturale del terreno.
Tre setti strutturali rivestiti in pietra lavica locale suddividono le due unità abitative e aprono la visuale verso il panorama come un binocolo, al contempo schermandosi dalle altre abitazioni circostanti. L’intero progetto è stato pensato per mimetizzare al massino l’intervento nel suo contesto naturale.





